Veszprém
Eladó Lakás
69 m2
74.990.000 Ft
348177
Veszprém - Eladó Lakás
69 m2
74.990.000 Ft
348177
Prémium minőségű társasházi lakások!
Leírás
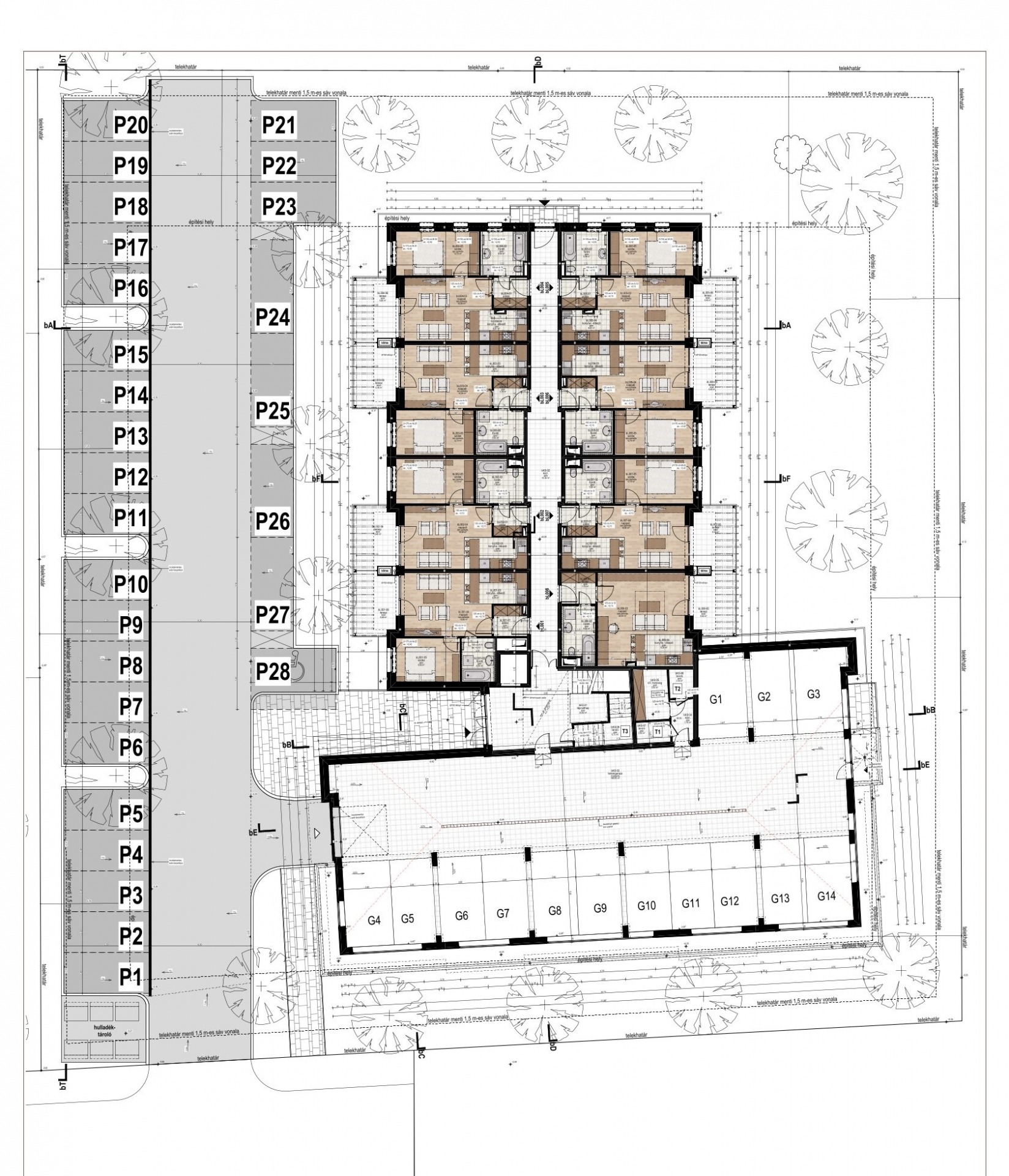
Veszprém dinamikusan fejlődő, csendes kertvárosi részén, kiváló infrastruktúrával és könnyű megközelíthetőséggel kínálunk eladásra újépítésű lakásokat. Az ingatlan egy földszint + 3 emeletből álló, összesen 43 lakásos társasház, korszerű energetikai megoldásokkal, prémium minőségben épül.
A modern, liftes társasház kényelmes életkörnyezetet biztosít leendő lakói számára. 29-75 m2 alapterületű, napfényes, praktikus elrendezésű lakások kerültek kialakításra, így mindenki megtalálhatja az elképzeléseinek és igényeinek megfelelő otthont.
Az építkezés folyamatban van, várhatóan 2027. IV. negyedévében kerül befejezésre.
A társasházban teremgarázs és kültéri parkolók állnak rendelkezésre, ezekből opcionálisan lehet választani. Ezen kívül privát tároló megvásárlására is van lehetőség. A földszinti lakásokhoz saját kert és terasz, az emeletiekhez pedig erkély tartozik.
Az ingatlan fűtését központi hőszivattyú biztosítja, padlófűtéssel, egyedi hőmennyiségmérővel.
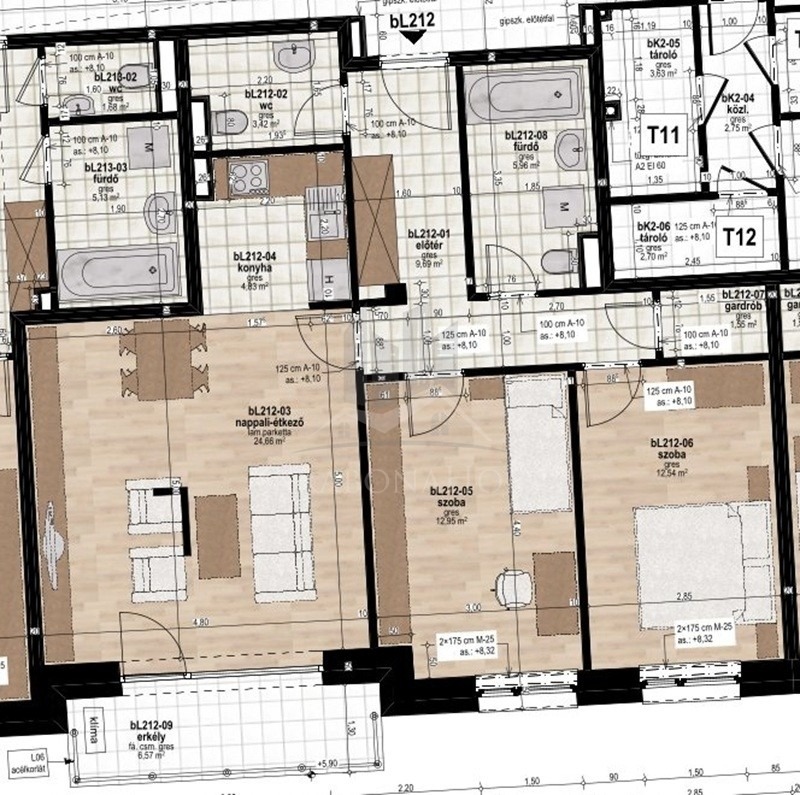
A BL213-as lakás, 2. emeleti, 69,26 m2 alapterületű, amihez 5,15 m2-es erkély tartozik.
Elosztását tekintve: előtér, nappali-konyha-étkező, 2 szoba, fürdőszoba, WC.
A lakás fűtéskész vételára bruttó 74.990.000 Ft, kérhető a kulcsrakész befejezés, így az ára bruttó 84.990.000 Ft.
Parkoló ára: 2.800.000 Ft.
Garázs ára: 7.800.000 Ft - 8.500.000 Ft. A lakásokhoz 1 db parkoló vagy 1 db garázs megvásárlása kötelező.
Lehetőség van tároló vásárlására is, ára: 1.800.000 Ft – 2.200.000 Ft/db
A további lakástípusokat honlapunkon is megtalálja.
Használja ki az illetékmentességet és a 3 %-os Otthon Start programot!
Irodánk díjmentes pénzügyi tanácsadással áll ügyfelei rendelkezésére. Bankfüggetlen közvetítőként megtaláljuk az Ön számára legkedvezőbb pénzügyi megoldásokat és támogatjuk az ügylet teljeskörű lebonyolításában.
Bővebb információkért hívjon, akár hétvégén is!
Paraméterek
Paraméterek
| Település: | 82000 Veszprém |
| Tranzakció típusa: | Eladó |
| Ingatlan típusa: | Lakás / Tégla |
| Alapterület: | 69 m2 |
| Szobaszám: | 3 |
| CSOK PLUSZ: | Igen |
| 3% támogatásra jogosult: | Igen |
| Építés éve: | 2026 |
| Tulajdonjog / bérleti jog: | Tulajdonjog |
| Állapot: | Újépítésű |
| Komfort: | Összkomfortos |
| Szintek száma az épületben: | 4 szintes |
| Emelet: | 2. emelet |
| Lift: | Van |
| Fűtés: | Hőszivattyú |
| Wc és fürdőszoba: | Külön helyiségben |
| Erkély: | Igen |
| Erkély mérete: | 5 m2 |
| Extrák: | Jogilag újépítésű, Alacsony rezsi |
Kapcsolati adatok
Érdeklődjön az ingatlanról, e-mailben!
Tartalomjegyzék
3 Egyes adatkezelési folyamatok 6
3.1 Kapcsolatfelvétel és kapcsolattartás 6
3.1.1 A kezelt személyes adatok és az adatkezelés célja 6
3.1.2 Az adatkezelés jogalapja 6
3.1.3 Az adatkezelés időtartama 7
3.1.5 Adatvédelmi nyilatkozat üzleti partnereink felé 7
3.2 Érdeklődés az ingatlanról 8
3.2.1 A kezelt személyes adatok és az adatkezelés célja 8
3.2.2 Az adatkezelés jogalapja 8
3.2.3 Az adatkezelés időtartama 9
3.2.5 Adatvédelmi nyilatkozat üzleti partnereink felé 9
3.3 Általános megbízási szerződés 10
3.3.1 A kezelt személyes adatok és az adatkezelés célja 10
3.3.2 Az adatkezelés jogalapja 10
3.3.3 Az adatkezelés időtartama 10
3.3.5 A személyes adatok szolgáltatása 11
3.4 Bérbeadói megbízási szerződés 12
3.4.1 A kezelt személyes adatok és az adatkezelés célja 12
3.4.2 Az adatkezelés jogalapja 12
3.4.3 Az adatkezelés időtartama 12
3.4.5 A személyes adatok szolgáltatása 13
3.5 Bérleti szándéknyilatkozat, vételi ajánlat 14
3.5.1 A kezelt személyes adatok és az adatkezelés célja 14
3.5.2 Az adatkezelés jogalapja 14
3.5.3 Az adatkezelés időtartama 15
3.5.5 A személyes adatok szolgáltatása 15
3.6 Eseti megbízási szerződés 16
3.6.1 A kezelt személyes adatok és az adatkezelés célja 16
3.6.2 Az adatkezelés jogalapja 16
3.6.3 Az adatkezelés időtartama 17
3.6.5 A személyes adatok szolgáltatása 17
3.7 Félkizárólagos megbízási szerződés 18
3.7.1 A kezelt személyes adatok és az adatkezelés célja 18
3.7.2 Az adatkezelés jogalapja 18
3.7.3 Az adatkezelés időtartama 18
3.7.5 A személyes adatok szolgáltatása 19
3.8 Kiemelt megbízási szerződés 20
3.8.1 A kezelt személyes adatok és az adatkezelés célja 20
3.8.2 Az adatkezelés jogalapja 20
3.8.3 Az adatkezelés időtartama 20
3.8.5 A személyes adatok szolgáltatása 21
3.9 Az ingatlan megtekintése 22
3.9.1 A kezelt személyes adatok és az adatkezelés célja 22
3.9.2 Az adatkezelés jogalapja 22
3.9.3 Az adatkezelés időtartama 22
3.10 Tulajdonosi és haszonélvezői pótadatlap és meghatalmazás 23
3.10.1 A kezelt személyes adatok és az adatkezelés célja 23
3.10.2 Az adatkezelés jogalapja 23
3.10.3 Az adatkezelés időtartama 23
3.10.4 Az adatkezelés módja 24
3.10.5 A személyes adatok szolgáltatása 24
4 Milyen jogai vannak a Felhasználóknak? 25
4.2 Helyesbítéshez való jog 25
4.5 Adatkezelés korlátozásához való jog 25
4.6 Adathordozhatósághoz való jog 26
4.9 Jogorvoslati lehetőségek 26
5 Joggyakorlásra irányuló kérelemmel kapcsolatos eljárásunk 27
5.2 Tájékoztatás módja, határideje 27
5.4 Tájékoztatás és intézkedés költségei 27
6 Személyes adatok lehetséges címzettjei, adatfeldolgozók 28
6.1 Weboldal működésével összefüggésben 28
6.2 Közösségi média felületekkel összefüggésben 28
6.3 Számla-kiállítással összefüggésben 28
6.4 Közös adatkezelés Facebookkal 28
7.1 Szervezési intézkedések 30
8.2 Hogyan kezelhetőek a sütik? 31
9.1 Adatkezelés eltérő célra 33
9.2 Nyilvántartási kötelezettség 33
10.1 számú melléklet; a vonatkozó jogszabályok 34
10.2 számú melléklet; a személyes adatok kezelésével kapcsolatos fogalmak 35
10.3 számú melléklet; érintetti jogok 37
Jelen Tájékoztatót abból a célból fogadjuk el, hogy szolgáltatásainkat igénybe vevő természetes személyek és jogi személyek képviselői (a továbbiakban: Ügyfelek vagy Felhasználók) részére minden lényeges információt és tájékoztatást tömör, átlátható, érthető és könnyen hozzáférhető formában, világosan és közérthetően megfogalmazva közöljünk, valamint segítsük a Felhasználókat a 4. pontban szereplő jogaik gyakorlásában. Szolgáltatásaink a https://kompaktingatlan.hu/ weboldalon és személyesen az irodánkban (9022 Győr Móricz Zsigmond rkp. 1. fszt. 8.) érhetőek el.
Tájékoztatási kötelezettségünk alapja a 2018. május 25. napjától alkalmazandó, az Európai Parlament és Tanács (EU) 2016/679. számú Rendelet (a továbbiakban: GDPR) 12. cikke, az információs önrendelkezési jogról és az információszabadságról 2011. évi CXII. törvény (a továbbiakban: Infotv.) 16. §-a, illetve az elektronikus kereskedelmi szolgáltatások, valamint az információs társadalommal összefüggő szolgáltatások egyes kérdéseiről szóló 2001. évi CVIII. törvény (Elkertv.) 4. §-a.
A Tájékoztató a GDPR, az Infotv., valamint az egyes adatkezelések szempontjából releváns további jogszabályok figyelembevételével készült. A jogszabályok felsorolását a Tájékoztató 10.1. számú melléklete, a legfontosabb fogalmakat a 10.2. számú melléklet, az egyes érintetti jogok részletes ismertetését a 10.3. számú melléklet tartalmazza.
Jelen tájékoztató kialakítása és alkalmazása során a Nemzeti Adatvédelmi és Információszabadság Hatóságnak az előzetes tájékoztatás adatvédelmi követelményeiről szóló ajánlásban foglalt megállapítások, valamint a GDPR 5. cikkének figyelembevételével, különösen az 5. cikk (2) bekezdésében szereplő elszámoltathatóság elvének szellemében jártunk el.
Ugyancsak figyelemmel kísérjük az Európai Unió gyakorlatát a személyes adatok védelme tekintetében; ennek megfelelően az Európai Bizottság 29-es Munkacsoportjának az átláthatóságról szóló iránymutatásának tartalmában foglaltakat is beültetjük adatkezelési gyakorlatunkba.
Név: Kompakt Ingatlan Szolgáltató Korlátolt Felelősségű Társaság
Székhely: 9012 Győr, Szalvai Mihály utca 19.
Cégjegyzékszám: 08-09-030991
Adószám: 26744054-2-08
Képviseli: Polócz Péter, ügyvezető
E-mail cím: ingatlankompakt@gmail.com
Telefonszám: +36 (30) 3 644 306
Jelen pontban részletezzük az egyes adatkezelésekhez tartozó azon lényeges körülményeket, melyeket a GDPR és az egyéb ágazati jogszabályok elvárnak minden adatkezelőtől.
Weboldalunkon keresztül fel lehet venni velünk a kapcsolatot bármilyen célból. Ezen kívül üzleti partnereink kapcsolattartóinak személyes adatait is kezeljük munkánk során. Az ehhez kapcsolódó adatkezelés részletei az alábbiakban láthatóak.
|
személyes adat |
adatkezelés célja |
adatkezelés jogalapja |
|
név |
Ügyfél, vagy üzleti partnerünk kapcsolattartójának beazonosítása |
Az Ügyfél hozzájárulása (GDPR 6. cikk (1) bekezdés a) pontja Üzleti partner esetében a jogos érdek (GDPR 6. cikk (1) f) pont) |
|
e-mail cím |
kapcsolatfelvétel és kapcsolattartás az Ügyféllel, vagy üzleti partnerünk kapcsolattartójával |
Az Ügyfél hozzájárulása (GDPR 6. cikk (1) bekezdés a) pontja Üzleti partner esetében a jogos érdek (GDPR 6. cikk (1) f) pont) |
|
telefonszám |
kapcsolatfelvétel és kapcsolattartás az Ügyféllel, vagy üzleti partnerünk kapcsolattartójával |
Az Ügyfél hozzájárulása (GDPR 6. cikk (1) bekezdés a) pontja Üzleti partner esetében a jogos érdek (GDPR 6. cikk (1) f) pont) |
|
közösségi média felületen elérhető nyilvános profil adatok |
Ügyfél azonosítása |
Az Ügyfél hozzájárulása (GDPR 6. cikk (1) bekezdés a) pontja Üzleti partner esetében a jogos érdek (GDPR 6. cikk (1) f) pont) |
Az Ügyfélnek a kapcsolatfelvételkor megadott, önkéntes, kifejezett magatartás tanúsításával megadott hozzájárulása személyes adatainak 3.2.1. pontban szereplő céljából történő kezeléséhez (GDPR 6. cikk (1) bekezdés a) pontja).
Amennyiben a Felhasználó adatait az eredeti adatfelvételtől eltérő célja használjuk, akkor erről a Felhasználót tájékoztatjuk, és ehhez előzetes, kifejezett hozzájárulását megszerezzük, illetőleg lehetőséget biztosítunk számára, hogy a felhasználást megtiltsa (lásd: 9.1. pont).
Az üzleti partnereink kapcsolattartójának fenti személyes adatait az adatkezelő és üzleti partnereink jogos érdeke (GDPR 6. cikk (1) f) pont) alapján kezeljük. Mindkét fél jogos érdeke, hogy a Weboldal használata és az partneri egyeztetések során hatékonyan történjen az üzleti kommunikáció és bármilyen, a köztünk létrejött szerződést érintő lényeges körülményről tájékoztatást tudjunk nyújtani egymás kijelölt képviselőjének. Üzleti partnerünk kapcsolattartójának információs önrendelkezési jogának sérelme nem állapítható meg, mert munkaköri, vagy szerződéses kötelezettsége elősegíteni a felek közötti kommunikációt és megadni személyes adatait ebből a célból. Üzleti partnerünk kapcsolattartója tiltakozhat ezen adatkezelés ellen.
A megadott személyes adatokat a hozzájárulás visszavonásáig kezeljük. Hozzájárulását a Felhasználó bármikor visszavonhatja. A hozzájárulás visszavonása nem érinti a hozzájáruláson alapuló, a visszavonás előtti adatkezelés jogszerűségét.
Üzleti partnereink kapcsolattartóinak személyes adatait annyi ideig kezeljük, amíg szükséges a kommunikáció szempontjából, valamint ameddig a releváns jogszabályi rendelkezések lehetővé teszik (2013. évi V. törvény alapján a szerződés teljesítésétől, vagy megszűnésétől 5 év, a 2000. évi C. törvény alapján a számla kiállításától 8 év).
Elektronikus formában.
A tudomány és technológia állása és a megvalósítás költségei, továbbá az adatkezelés jellege, hatóköre, körülményei és céljai, valamint a természetes személyek jogaira és szabadságaira jelentett, változó valószínűségű és súlyosságú kockázat figyelembevételével mind az adatkezelés módjának meghatározásakor, mind pedig az adatkezelés során olyan megfelelő technikai és szervezési intézkedéseket – például álnevesítést – hajtunk végre, amelyek célja egyrészt az adatvédelmi elvek, például az adattakarékosság hatékony megvalósítása, másrészt a GDPR-ban foglalt követelmények teljesítéséhez és az érintettek jogainak védelméhez szükséges garanciák beépítése az adatkezelés folyamatába.
Weboldalunkon az „INGATLANOK” menüpont alatt találhatja az értékesítésre szánt ingatlanokat. Amennyiben valamely ingatlan felkeltette az érdeklődését, úgy a weboldalunkon keresztül üzenetet küldhet nekünk az ingatlannal kapcsolatban. Az ehhez kapcsolódó adatkezelés részletei az alábbiakban láthatóak.
|
személyes adat |
adatkezelés célja |
adatkezelés jogalapja |
|
név |
Ügyfél, vagy üzleti partnerünk kapcsolattartójának beazonosítása |
Az Ügyfél hozzájárulása (GDPR 6. cikk (1) bekezdés a) pontja Üzleti partner esetében a jogos érdek (GDPR 6. cikk (1) f) pont) |
|
e-mail cím |
kapcsolatfelvétel és kapcsolattartás az Ügyféllel, vagy üzleti partnerünk kapcsolattartójával |
Az Ügyfél hozzájárulása (GDPR 6. cikk (1) bekezdés a) pontja Üzleti partner esetében a jogos érdek (GDPR 6. cikk (1) f) pont) |
|
telefonszám |
kapcsolatfelvétel és kapcsolattartás az Ügyféllel, vagy üzleti partnerünk kapcsolattartójával |
Az Ügyfél hozzájárulása (GDPR 6. cikk (1) bekezdés a) pontja Üzleti partner esetében a jogos érdek (GDPR 6. cikk (1) f) pont) |
Az Ügyfélnek az önkéntes, kifejezett magatartás tanúsításával megadott hozzájárulása személyes adatainak 3.2.1. pontban szereplő céljából történő kezeléséhez (GDPR 6. cikk (1) bekezdés a) pontja).
Amennyiben a Felhasználó adatait az eredeti adatfelvételtől eltérő célja használjuk, akkor erről a Felhasználót tájékoztatjuk, és ehhez előzetes, kifejezett hozzájárulását megszerezzük, illetőleg lehetőséget biztosítunk számára, hogy a felhasználást megtiltsa (lásd: 9.1. pont).
Az üzleti partnereink kapcsolattartójának fenti személyes adatait az adatkezelő és üzleti partnereink jogos érdeke (GDPR 6. cikk (1) f) pont) alapján kezeljük. Mindkét fél jogos érdeke, hogy a Weboldal használata és az partneri egyeztetések során hatékonyan történjen az üzleti kommunikáció és bármilyen, a köztünk létrejött szerződést érintő lényeges körülményről tájékoztatást tudjunk nyújtani egymás kijelölt képviselőjének. Üzleti partnerünk kapcsolattartójának információs önrendelkezési jogának sérelme nem állapítható meg, mert munkaköri, vagy szerződéses kötelezettsége elősegíteni a felek közötti kommunikációt és megadni személyes adatait ebből a célból. Üzleti partnerünk kapcsolattartója tiltakozhat ezen adatkezelés ellen.
A megadott személyes adatokat a hozzájárulás visszavonásáig kezeljük. Hozzájárulását a Felhasználó bármikor visszavonhatja. A hozzájárulás visszavonása nem érinti a hozzájáruláson alapuló, a visszavonás előtti adatkezelés jogszerűségét.
Üzleti partnereink kapcsolattartóinak személyes adatait annyi ideig kezeljük, amíg szükséges a kommunikáció szempontjából, valamint ameddig a releváns jogszabályi rendelkezések lehetővé teszik (2013. évi V. törvény alapján a szerződés teljesítésétől, vagy megszűnésétől 5 év, a 2000. évi C. törvény alapján a számla kiállításától 8 év).
Elektronikus formában.
A tudomány és technológia állása és a megvalósítás költségei, továbbá az adatkezelés jellege, hatóköre, körülményei és céljai, valamint a természetes személyek jogaira és szabadságaira jelentett, változó valószínűségű és súlyosságú kockázat figyelembevételével mind az adatkezelés módjának meghatározásakor, mind pedig az adatkezelés során olyan megfelelő technikai és szervezési intézkedéseket – például álnevesítést – hajtunk végre, amelyek célja egyrészt az adatvédelmi elvek, például az adattakarékosság hatékony megvalósítása, másrészt a GDPR-ban foglalt követelmények teljesítéséhez és az érintettek jogainak védelméhez szükséges garanciák beépítése az adatkezelés folyamatába.
Az Ügyfél általános megbízási szerződés keretében megtudja bízni Adatkezelőt, hogy ingatlanközvetítő tevékenységi körében közvetítse és értékesítse az Ügyfél tulajdonában lévő ingatlanokat. Az ehhez kapcsolódó adatkezelés részletei az alábbiakban láthatóak.
|
személyes adat |
adatkezelés célja |
adatkezelés jogalapja |
|
Név |
Ügyfél azonosítása |
Szerződés teljesítése (GDPR 6. cikk (1) b) pont)
|
|
Anyja neve |
Ügyfél azonosítása |
Szerződés teljesítése (GDPR 6. cikk (1) b) pont)
|
|
Személyi igazolvány szám |
Ügyfél azonosítása |
Szerződés teljesítése (GDPR 6. cikk (1) b) pont)
|
|
Születési hely és idő |
Ügyfél azonosítása |
Szerződés teljesítése (GDPR 6. cikk (1) b) pont)
|
|
Lakcím |
Ügyfél azonosítása |
Szerződés teljesítése (GDPR 6. cikk (1) b) pont)
|
|
Adóazonosító jel |
Ügyfél azonosítása |
Szerződés teljesítése (GDPR 6. cikk (1) b) pont)
|
|
E-mail cím |
kapcsolattartás az Ügyféllel |
Szerződés teljesítése (GDPR 6. cikk (1) b) pont)
|
|
Telefonszám |
kapcsolattartás az Ügyféllel |
Szerződés teljesítése (GDPR 6. cikk (1) b) pont)
|
Szerződés teljesítése, melynek felei az Adatkezelő és a Felhasználó (GDPR 6. cikk (1) b) pont)
A szerződésen alapuló számviteli bizonylat kiállítását követő 8 évig (Sztv. 166. § (6) bekezdésére figyelemmel az Sztv. 169. § (1) bekezdése
A számviteli kötelezettségek teljesítéséhez nem szükséges személyes adatokat – figyelemmel a Polgári Törvénykönyvről szóló 2013. évi V. törvény (Ptk.) 6:22. § (1) bekezdésére – a fenti célok érdekében a megrendelés teljesítését követő 5 évig tároljuk.
Elektronikus és papír formában.
Tekintettel arra, hogy a jelen pontban szereplő személyes adatok ismerete nélkül a megbízási szerződést nem tudjuk teljesíteni, a személyes adatok megadása szerződés kötésének előfeltétele.
Az Ügyfél általános megbízási szerződés keretében megtudja bízni Adatkezelőt, hogy ingatlanközvetítő tevékenységi körében közvetítse és bérbe adja Ügyfél tulajdonában lévő ingatlanokat. Az ehhez kapcsolódó adatkezelés részletei az alábbiakban láthatóak.
|
személyes adat |
adatkezelés célja |
adatkezelés jogalapja |
|
Név |
Ügyfél azonosítása |
Szerződés teljesítése (GDPR 6. cikk (1) b) pont)
|
|
Anyja neve |
Ügyfél azonosítása |
Szerződés teljesítése (GDPR 6. cikk (1) b) pont)
|
|
Személyi igazolvány szám |
Ügyfél azonosítása |
Szerződés teljesítése (GDPR 6. cikk (1) b) pont)
|
|
Születési hely és idő |
Ügyfél azonosítása |
Szerződés teljesítése (GDPR 6. cikk (1) b) pont)
|
|
Lakcím |
Ügyfél azonosítása |
Szerződés teljesítése (GDPR 6. cikk (1) b) pont)
|
|
Adóazonosító jel |
Ügyfél azonosítása |
Szerződés teljesítése (GDPR 6. cikk (1) b) pont)
|
|
E-mail cím |
kapcsolattartás az Ügyféllel |
Szerződés teljesítése (GDPR 6. cikk (1) b) pont)
|
|
Telefonszám |
kapcsolattartás az Ügyféllel |
Szerződés teljesítése (GDPR 6. cikk (1) b) pont)
|
Szerződés teljesítése, melynek felei az Adatkezelő és a Felhasználó (GDPR 6. cikk (1) b) pont)
A szerződésen alapuló számviteli bizonylat kiállítását követő 8 évig (Sztv. 166. § (6) bekezdésére figyelemmel az Sztv. 169. § (1) bekezdése
A számviteli kötelezettségek teljesítéséhez nem szükséges személyes adatokat – figyelemmel a Polgári Törvénykönyvről szóló 2013. évi V. törvény (Ptk.) 6:22. § (1) bekezdésére – a fenti célok érdekében a megrendelés teljesítését követő 5 évig tároljuk.
Elektronikus és papír formában.
Tekintettel arra, hogy a jelen pontban szereplő személyes adatok ismerete nélkül a megbízási szerződést nem tudjuk teljesíteni, a személyes adatok megadása szerződés kötésének előfeltétele.
Bérleti vagy vásárlási szándék kifejezésével kapcsolatban az Ügyfélnek szükséges bizonyos adatokat megadnia Adatkezelőnek. Az ehhez kapcsolódó adatkezelés részletei az alábbiakban láthatóak.
|
személyes adat |
adatkezelés célja |
adatkezelés jogalapja |
|
Név |
Ügyfél azonosítása |
Szerződés teljesítése (GDPR 6. cikk (1) b) pont)
|
|
Anyja neve |
Ügyfél azonosítása |
Szerződés teljesítése (GDPR 6. cikk (1) b) pont)
|
|
Személyi igazolvány szám |
Ügyfél azonosítása |
Szerződés teljesítése (GDPR 6. cikk (1) b) pont)
|
|
Lakcímkártya száma |
Ügyfél azonosítása |
Szerződés teljesítése (GDPR 6. cikk (1) b) pont)
|
|
Személyi szám |
Ügyfél azonosítása |
Szerződés teljesítése (GDPR 6. cikk (1) b) pont)
|
|
Születési hely és idő |
Ügyfél azonosítása |
Szerződés teljesítése (GDPR 6. cikk (1) b) pont)
|
|
Lakcím |
Ügyfél azonosítása |
Szerződés teljesítése (GDPR 6. cikk (1) b) pont)
|
|
Adóazonosító jel |
Ügyfél azonosítása |
Szerződés teljesítése (GDPR 6. cikk (1) b) pont)
|
|
E-mail cím |
kapcsolattartás az Ügyféllel |
Szerződés teljesítése (GDPR 6. cikk (1) b) pont)
|
|
Telefonszám |
kapcsolattartás az Ügyféllel |
Szerződés teljesítése (GDPR 6. cikk (1) b) pont)
|
|
Bankszámlaszám |
Ügyfél azonosítása |
Szerződés teljesítése (GDPR 6. cikk (1) b) pont)
|
Szerződés teljesítése, melynek felei az Adatkezelő és a Felhasználó (GDPR 6. cikk (1) b) pont)
A szerződésen alapuló számviteli bizonylat kiállítását követő 8 évig (Sztv. 166. § (6) bekezdésére figyelemmel az Sztv. 169. § (1) bekezdése
A számviteli kötelezettségek teljesítéséhez nem szükséges személyes adatokat – figyelemmel a Polgári Törvénykönyvről szóló 2013. évi V. törvény (Ptk.) 6:22. § (1) bekezdésére – a fenti célok érdekében a megrendelés teljesítését követő 5 évig tároljuk.
Elektronikus és papír formában.
Tekintettel arra, hogy a jelen pontban szereplő személyes adatok ismerete nélkül a tárgyban megjelölt szerződés nem teljesíthető, a személyes adatok megadása szerződés kötésének előfeltétele.
Az Ügyfél eseti megbízási szerződés keretében megtudja bízni Adatkezelőt, hogy ingatlanközvetítő tevékenységi körében közvetítse és bérbe adja Ügyfél tulajdonában lévő ingatlant. Az ehhez kapcsolódó adatkezelés részletei az alábbiakban láthatóak.
|
személyes adat |
adatkezelés célja |
adatkezelés jogalapja |
|
Név |
Ügyfél azonosítása |
Szerződés teljesítése (GDPR 6. cikk (1) b) pont)
|
|
Anyja neve |
Ügyfél azonosítása |
Szerződés teljesítése (GDPR 6. cikk (1) b) pont)
|
|
Személyi igazolvány szám |
Ügyfél azonosítása |
Szerződés teljesítése (GDPR 6. cikk (1) b) pont)
|
|
Születési hely és idő |
Ügyfél azonosítása |
Szerződés teljesítése (GDPR 6. cikk (1) b) pont)
|
|
Lakcím |
Ügyfél azonosítása |
Szerződés teljesítése (GDPR 6. cikk (1) b) pont)
|
|
Adóazonosító jel |
Ügyfél azonosítása |
Szerződés teljesítése (GDPR 6. cikk (1) b) pont)
|
|
E-mail cím |
kapcsolattartás az Ügyféllel |
Szerződés teljesítése (GDPR 6. cikk (1) b) pont)
|
|
Telefonszám |
kapcsolattartás az Ügyféllel |
Szerződés teljesítése (GDPR 6. cikk (1) b) pont)
|
|
Megtekintő személy neve |
Azonosítás |
Szerződés teljesítése (GDPR 6. cikk (1) b) pont)
|
|
Megtekintő személy születési idejes és helye |
Azonosítás |
Szerződés teljesítése (GDPR 6. cikk (1) b) pont)
|
Szerződés teljesítése, melynek felei az Adatkezelő és a Felhasználó (GDPR 6. cikk (1) b) pont)
A szerződésen alapuló számviteli bizonylat kiállítását követő 8 évig (Sztv. 166. § (6) bekezdésére figyelemmel az Sztv. 169. § (1) bekezdése
A számviteli kötelezettségek teljesítéséhez nem szükséges személyes adatokat – figyelemmel a Polgári Törvénykönyvről szóló 2013. évi V. törvény (Ptk.) 6:22. § (1) bekezdésére – a fenti célok érdekében a megrendelés teljesítését követő 5 évig tároljuk.
Elektronikus és papír formában.
Tekintettel arra, hogy a jelen pontban szereplő személyes adatok ismerete nélkül a megbízási szerződést nem tudjuk teljesíteni, a személyes adatok megadása szerződés kötésének előfeltétele.
Az Ügyfél félkizárólagos megbízási szerződés keretében megtudja bízni Adatkezelőt, hogy ingatlanközvetítő tevékenységi körében közvetítse és értékesítse az ügyfél tulajdonában lévő ingatlanokat. Az ehhez kapcsolódó adatkezelés részletei az alábbiakban láthatóak.
|
személyes adat |
adatkezelés célja |
adatkezelés jogalapja |
|
Név |
Ügyfél azonosítása |
Szerződés teljesítése (GDPR 6. cikk (1) b) pont)
|
|
Anyja neve |
Ügyfél azonosítása |
Szerződés teljesítése (GDPR 6. cikk (1) b) pont)
|
|
Személyi igazolvány szám |
Ügyfél azonosítása |
Szerződés teljesítése (GDPR 6. cikk (1) b) pont)
|
|
Születési hely és idő |
Ügyfél azonosítása |
Szerződés teljesítése (GDPR 6. cikk (1) b) pont)
|
|
Lakcím |
Ügyfél azonosítása |
Szerződés teljesítése (GDPR 6. cikk (1) b) pont)
|
|
Adóazonosító jel |
Ügyfél azonosítása |
Szerződés teljesítése (GDPR 6. cikk (1) b) pont)
|
|
E-mail cím |
kapcsolattartás az Ügyféllel |
Szerződés teljesítése (GDPR 6. cikk (1) b) pont)
|
|
Telefonszám |
kapcsolattartás az Ügyféllel |
Szerződés teljesítése (GDPR 6. cikk (1) b) pont)
|
Szerződés teljesítése, melynek felei az Adatkezelő és a Felhasználó (GDPR 6. cikk (1) b) pont)
A szerződésen alapuló számviteli bizonylat kiállítását követő 8 évig (Sztv. 166. § (6) bekezdésére figyelemmel az Sztv. 169. § (1) bekezdése
A számviteli kötelezettségek teljesítéséhez nem szükséges személyes adatokat – figyelemmel a Polgári Törvénykönyvről szóló 2013. évi V. törvény (Ptk.) 6:22. § (1) bekezdésére – a fenti célok érdekében a megrendelés teljesítését követő 5 évig tároljuk.
Elektronikus és papír formában.
Tekintettel arra, hogy a jelen pontban szereplő személyes adatok ismerete nélkül a megbízási szerződést nem tudjuk teljesíteni, a személyes adatok megadása szerződés kötésének előfeltétele.
Az Ügyfél kiemelt megbízási szerződés keretében megtudja bízni Adatkezelőt, hogy ingatlanközvetítő tevékenységi körében közvetítse és értékesítse az ügyfél tulajdonában lévő ingatlanokat. Az ehhez kapcsolódó adatkezelés részletei az alábbiakban láthatóak.
|
személyes adat |
adatkezelés célja |
adatkezelés jogalapja |
|
Név |
Ügyfél azonosítása |
Szerződés teljesítése (GDPR 6. cikk (1) b) pont)
|
|
Anyja neve |
Ügyfél azonosítása |
Szerződés teljesítése (GDPR 6. cikk (1) b) pont)
|
|
Személyi igazolvány szám |
Ügyfél azonosítása |
Szerződés teljesítése (GDPR 6. cikk (1) b) pont)
|
|
Születési hely és idő |
Ügyfél azonosítása |
Szerződés teljesítése (GDPR 6. cikk (1) b) pont)
|
|
Lakcím |
Ügyfél azonosítása |
Szerződés teljesítése (GDPR 6. cikk (1) b) pont)
|
|
Adóazonosító jel |
Ügyfél azonosítása |
Szerződés teljesítése (GDPR 6. cikk (1) b) pont)
|
|
E-mail cím |
kapcsolattartás az Ügyféllel |
Szerződés teljesítése (GDPR 6. cikk (1) b) pont)
|
|
Telefonszám |
kapcsolattartás az Ügyféllel |
Szerződés teljesítése (GDPR 6. cikk (1) b) pont)
|
Szerződés teljesítése, melynek felei az Adatkezelő és a Felhasználó (GDPR 6. cikk (1) b) pont)
A szerződésen alapuló számviteli bizonylat kiállítását követő 8 évig (Sztv. 166. § (6) bekezdésére figyelemmel az Sztv. 169. § (1) bekezdése
A számviteli kötelezettségek teljesítéséhez nem szükséges személyes adatokat – figyelemmel a Polgári Törvénykönyvről szóló 2013. évi V. törvény (Ptk.) 6:22. § (1) bekezdésére – a fenti célok érdekében a megrendelés teljesítését követő 5 évig tároljuk.
Elektronikus és papír formában.
Tekintettel arra, hogy a jelen pontban szereplő személyes adatok ismerete nélkül a megbízási szerződést nem tudjuk teljesíteni, a személyes adatok megadása szerződés kötésének előfeltétele.
|
személyes adat |
adatkezelés célja |
adatkezelés jogalapja |
|
Név |
Az ingatlan megtekintőjének azonosítása |
Jogos érdek (GDPR 6. cikk (1) f) pont) |
|
Születési hely és idő |
Az ingatlan megtekintőjének azonosítása |
Jogos érdek (GDPR 6. cikk (1) f) pont) |
|
E-mail cím |
Kapcsolatfelvétel az ingatlan megtekintőjével |
Jogos érdek (GDPR 6. cikk (1) f) pont) |
|
Telefonszám |
Kapcsolatfelvétel az ingatlan megtekintőjével |
Jogos érdek (GDPR 6. cikk (1) f) pont) |
Jogos érdek (GDPR 6. cikk (1) f) pont). Adatkezelő a jelen pontban szereplő érdekmérlegelési teszttel kívánja igazolni az 3.10.1. pontban meghatározott adatok kezeléséhez fűződő jogos érdekét, mint a GDPR 6. cikk (1) bekezdés f) pontjában szereplő jogalapot ezen adatkezelési tevékenységekhez.
Az Adatkezelő jogos érdeke, hogy a megkerülésével történő ügyletkötés esetén jogszerű polgári jogi igényeit érvényesíteni tudja.
Az Ügyfél jogos érdeke, hogy az ingatlant megtekintő személyek azonosításra kerüljenek, mivel az ingatlanban található vagyonelemek esetleges eltulajdonítása esetén hatékonyabban tud fellépni az Ügyfél, ezen kívül az azonosítás preventív eszközt is jelent az ilyen jellegű cselekmények elkerülése érdekében.
A fentiekre figyelemmel a tárgybeli személyes adatok kezelése megítélésünk szerint nem okoz nagyfokú sérelmet az Érintett számára.
Az adatokat a Polgári Törvénykönyvről szóló 2013. évi V. törvény (Ptk.) 6:22. § (1) bekezdésére – a fenti célok érdekében a nyilatkozat aláírását követő 5 évig tároljuk.
Elektronikus és papír formában.
Amennyiben az ingatlannak több tulajdonosa/haszonélvezője van, úgy a pótadatlapon szükséges az bizonyos adatokat megadni. Az ehhez kapcsolódó adatkezelés részletei az alábbiakban láthatóak.
|
személyes adat |
adatkezelés célja |
adatkezelés jogalapja |
|
Név |
Ügyfél azonosítása |
Szerződés teljesítése (GDPR 6. cikk (1) b) pont)
|
|
Anyja neve |
Ügyfél azonosítása |
Szerződés teljesítése (GDPR 6. cikk (1) b) pont)
|
|
Személyi igazolvány szám |
Ügyfél azonosítása |
Szerződés teljesítése (GDPR 6. cikk (1) b) pont)
|
|
Születési hely és idő |
Ügyfél azonosítása |
Szerződés teljesítése (GDPR 6. cikk (1) b) pont)
|
|
Lakcím |
Ügyfél azonosítása |
Szerződés teljesítése (GDPR 6. cikk (1) b) pont)
|
|
Adóazonosító jel |
Ügyfél azonosítása |
Szerződés teljesítése (GDPR 6. cikk (1) b) pont)
|
|
E-mail cím |
kapcsolattartás az Ügyféllel |
Szerződés teljesítése (GDPR 6. cikk (1) b) pont)
|
|
Telefonszám |
kapcsolattartás az Ügyféllel |
Szerződés teljesítése (GDPR 6. cikk (1) b) pont)
|
Szerződés teljesítése, melynek felei az Adatkezelő és az Ügyfél (GDPR 6. cikk (1) b) pont)
A szerződésen alapuló számviteli bizonylat kiállítását követő 8 évig (Sztv. 166. § (6) bekezdésére figyelemmel az Sztv. 169. § (1) bekezdése
A számviteli kötelezettségek teljesítéséhez nem szükséges személyes adatokat – figyelemmel a Polgári Törvénykönyvről szóló 2013. évi V. törvény (Ptk.) 6:22. § (1) bekezdésére – a fenti célok érdekében a megrendelés teljesítését követő 5 évig tároljuk.
Elektronikus és papír formában.
Tekintettel arra, hogy a jelen pontban szereplő személyes adatok ismerete nélkül a megbízási szerződést nem tudjuk teljesíteni, a személyes adatok megadása szerződés kötésének előfeltétele.
Számunkra fontos, hogy adatkezelésünk megfeleljen a tisztességesség, a jogszerűség és az átláthatóság követelményeinek. Ennek fényében jelen pontban röviden bemutatjuk az egyes érintetti jogokat, majd ezeket bővebben kifejtjük a tájékoztató 3. számú mellékletében.
Felhasználónk ingyenes tájékoztatást kérhet személyes adatai kezelésének részleteiről, valamint jogszabályban meghatározott esetekben kérheti azok helyesbítését, törlését, zárolását, vagy kezelésének korlátozását, és tiltakozhat az ilyen személyes adatok kezelése ellen. A tájékoztatás kérését és a jelen pontban szereplő kérelmeket Felhasználónk 2. pontban szereplő elérhetőségeinkre tudja címezni.
Felhasználónk visszajelzést kaphat tőlünk személyes adatainak kezeléséről és ezekhez a személyes adatokhoz, illetve kezelésük részleteihez hozzáférhet.
Felhasználónk kérésére indokolatlan késedelem nélkül helyesbítjük a rá vonatkozó pontatlan személyes adatokat, illetve jogosult kérni a hiányos személyes adatok – egyebek mellett kiegészítő nyilatkozat útján történő – kiegészítését.
Felhasználónk kérésére töröljük a rá vonatkozó személyes adatokat, ha azok kezelésére nincsen szükségünk, vagy visszavonja hozzájárulását, vagy tiltakozik az adatkezelés ellen, vagy kezelésük jogellenes.
Felhasználónk törlésre irányuló kérelméről – ha igényli – igyekszünk értesíteni minden olyan adatkezelőt, aki Felhasználónk esetlegesen nyilvánosságra került adatait megismerte, illetve megismerhette.
Felhasználónk kérésére korlátozzuk az adatkezelést, ha a személyes adatok pontossága vitatott, vagy jogellenes az adatkezelés, vagy Felhasználónk tiltakozik az adatkezelés ellen, illetve ha nincsen szükségünk a továbbiakban a megadott személyes adatokra.
Felhasználónk a rá vonatkozó, általa megadott személyes adatokat tagolt, széles körben használt, géppel olvasható formátumban megkaphatja, illetve ezeket továbbíthatja egy másik adatkezelőnek.
Felhasználónk jogosult arra, hogy a saját helyzetével kapcsolatos okokból bármikor tiltakozzon személyes adatainak jogos érdeken alapuló kezelése ellen (lásd: 3.1.; 3.2.; 3.10 pontok). Ebben az esetben a személyes adatokat nem kezelhetjük tovább, kivéve, ha bizonyítjuk, hogy az adatkezelést olyan kényszerítő erejű jogos okok indokolják, amelyek elsőbbséget élveznek a Felhasználó érdekeivel, jogaival és szabadságaival szemben, vagy amelyek jogi igények előterjesztéséhez, érvényesítéséhez vagy védelméhez kapcsolódnak. Tiltakozás esetén a személyes adatok a továbbiakban e célból főszabály szerint nem kezelhetők.
A kérelmet annak benyújtásától számított legrövidebb időn belül, de legfeljebb 30 nap – tiltakozás esetén 15 nap – alatt megvizsgáljuk, és annak megalapozottsága kérdésében döntést hozunk, amelyről a kérelmezőt írásban tájékoztatjuk. Ha Felhasználónk kérelmét nem teljesítjük, döntésünkben közöljük a kérelem elutasításának ténybeli és jogi indokait.
Számunkra fontos a személyes adatok védelme, egyúttal tiszteletben tartjuk az Ön információs önrendelkezési jogát, ezért igyekszünk minden kérelemre korrekt módon és határidőn belül reagálni. Erre tekintettel megkérjük Önt, hogy az esetleges hatósági és bírósági igényérvényesítés igénybevétele előtt szíveskedjenek felvenni a kapcsolatot – panasz, vagy kérdés megtétele céljából – velünk az esetleges kifogások mihamarabbi rendezése érdekében.
Amennyiben a megkeresés nem vezet eredményre, Felhasználónk
-
a Polgári Törvénykönyvről szóló 2013. évi V. törvény alapján bíróság előtt érvényesítheti jogait (a per Felhasználónk lakóhelye vagy tartózkodási helye szerint illetékes törvényszék előtt is megindítható; a törvényszékek felsorolását és elérhetőségét az alábbi linken keresztül lehet megtekinteni: http://birosag.hu/torvenyszekek), valamint
-
az Infotv.-ben foglaltak szerint a Nemzeti Adatvédelmi és Információszabadság Hatósághoz (cím: 1055 Budapest, Falk Miksa utca 9-11.; levelezési cím: 1363 Budapest, Pf.: 9.; telefon: +36-1-391-1400; fax: +36-1-391-1410; e-mail: ugyfelszolgalat@naih.hu; honlap: https://naih.hu/; a továbbiakban: NAIH) fordulhat és panaszt tehet.
Helyesbítésről, törlésről, adatkezelés-korlátozásról minden esetben értesítjük azokat a címzetteket akikkel, illetve amelyekkel a Felhasználó személyes adatait közöltük, kivéve, ha ez lehetetlennek bizonyul, vagy aránytalanul nagy erőfeszítést igényel. A Felhasználó kérésére tájékoztatást nyújtunk ezekről a címzettekről.
A 4. ponthoz kapcsolódó kérelmek nyomán hozott intézkedésekről legfeljebb a kérelem beérkezésétől számított egy hónapon belül – ha a Felhasználó másként nem kéri – elektronikus formában tájékoztatást nyújtunk. Ez a határidő szükség esetén – a kérelem összetettsége, illetve a kérelmek számára tekintettel – további két hónappal meghosszabbítható. A határidő meghosszabbításáról annak okainak megjelölésével a kérelem kézhezvételétől számított egy hónapon belül tájékoztatjuk a Felhasználót.
A Felhasználó kérésére szóbeli tájékoztatás is adható, feltéve, hogy más módon igazolja személyazonosságát.
Amennyiben nem intézkedünk a kérelem nyomán, legfeljebb annak beérkezésétől számított egy hónapon belül tájékoztatjuk a Felhasználót ennek okairól, valamint arról, hogy panaszt nyújthat be a NAIH-nál, és élhet bírósági jogorvoslati jogával (4.9. pont).
Kivételes esetben, ha megalapozott kétségeink vannak a kérelmet benyújtó természetes személy kilétével kapcsolatban, további, személyazonosság megerősítéséhez szükséges információk nyújtását kérjük. Ez az intézkedés a GDPR 5. cikk (1) bekezdés f) pontjában meghatározott, az adatkezelés bizalmasságának elősegítése, azaz a személyes adatokhoz való jogosulatlan hozzáférés megakadályozása céljából szükséges.
A 4. ponthoz kapcsolódó kérelmekre adott tájékoztatást, illetve az azok alapján megtett intézkedéseket díjmentesen biztosítjuk.
Ha a Felhasználó kérelme egyértelműen megalapozatlan vagy – különösen ismétlődő jellege miatt – túlzó, – figyelemmel a kért információ vagy tájékoztatás nyújtásával vagy a kért intézkedés meghozatalával járó adminisztratív költségekre – ésszerű díjat számítunk fel, vagy megtagadjuk a kérelem alapján történő intézkedést.
A Weboldal használata során megadott személyes adatokhoz a tárhelyszolgáltató, mint adatfeldolgozó jogosult hozzáférni.
Név: Webrakéta Kft.
Elérhetőségek: 30-3738706
Weboldalunk több közösségi média felülettel is rendelkezik (például Facebook) így ha például a Felhasználó „kedveli” az oldalunkat Facebookon, vagy „követ” bennünket Twitteren, megismerünk minden, profiljához tartozó és nyilvánosság számára elérhető személyes adatot. Ezeken az oldalakon felmerülő adatkezelésekről az adott szolgáltató saját adatkezelési szabályzatában találhatóak releváns információk.
A számlázásokkal kapcsolatban az általunk igénybe vett adatfeldolgozó megismeri a Felhasználók által e célból megadott személyes adatokat. Az adatfeldolgozó adatai az alábbiak:
Név: NAV Online Számla rendszer
Elérhetőségek: NAV Infovonala: 1819, Külföldről: +36-1-250-9500
A Facebook-kal fennálló adatkezelésre – az adatkezelés konkrét céljától függően – az alábbiak irányadók:
-
A Facebookkal közösen felelősek vagyunk a személyes adatainak kezeléséért, melynek célja, célcsoportok létrehozása, kereskedelmi és tranzakciókkal kapcsolatos üzenetek kézbesítése, funkciók és tartalom személyre szabása, valamint a Facebook termékek fejlesztése és biztonságosabbá tétele. A GDPR-nak való megfelelés érdekében a felelősségi viszonyok rendezéséről szóló megállapodás a következő oldalon érhető el: https://www.facebook.com/legal/controller_addendum.
-
A közös adatkezelés keretében elsősorban a Facebook felelős azért, hogy tájékoztatást nyújtson az adatkezelésről és lehetővé tegye az érintettek számára a GDPR szerint őket megillető jogok gyakorlását. További információt személyes adatai Facebook általi kezeléséről, továbbá az Önt ezzel kapcsolatban megillető jogokról és lehetőségekről a Facebook adatkezelési tájékoztatójában talál, melyet itt érhet el: https://www.facebook.com/about/privacy/.
-
Egyebekben a személyes adatok feldolgozásáért a felek önálló felelősséggel tartoznak.
Az általunk végzett adatkezelés az Ön hozzájárulása alapján történik, a GDPR 6. cikk (1) bekezdés a) pontjának megfelelően. Beleegyezését a jövőre nézve bármikor visszavonhatja, ha megváltoztatja a cookie-sávon beállított preferenciáit. A hozzájárulás visszavonása nem érinti a hozzájárulás visszavonását megelőző adatkezelés jogszerűségét.
A Felhasználó személyes adatai megismerésére a mi és az adatfeldolgozók alkalmazottai a munkakörükbe tartozó feladatok teljesítéséhez szükséges mértékben jogosultak. Megteszünk minden olyan biztonsági, technikai és szervezési intézkedést, mely az adatok biztonságát garantálja.
Informatikai rendszereinkhez a hozzáférést személyhez köthető jogosultsággal tesszük lehetővé. A hozzáférések kiosztásánál érvényesül a „szükséges és elégséges jogok elve”, azaz informatikai rendszereinket és szolgáltatásainkat minden alkalmazott csak a feladatának ellátásához szükséges mértékben, az ennek megfelelő jogosultságokkal és a szükséges időtartamig használhatja. Az informatikai rendszerekhez és szolgáltatásokhoz hozzáférési jogot csak az a személy kaphat, aki biztonsági vagy egyéb (pl. összeférhetetlenségi) okokból nem esik korlátozás alá, valamint rendelkezik az annak biztonságos használatához szükséges szakmai, üzleti és információbiztonsági ismeretekkel.
Mi és az adatfeldolgozók írásos nyilatkozatban szigorú titoktartási szabályokat vállalunk, és a tevékenységünk során ezek szerint a titoktartási szabályok szerint kötelesek vagyunk eljárni.
Az adatokat – az adatfeldolgozóink által tárolt adatok kivételével – saját eszközeinken, adatközpontban tároljuk. Az adatokat tároló informatikai eszközöket elhatároltan, külön zárt szerverteremben tároljuk, többlépcsős, jogosultság ellenőrzéshez kötött beléptető rendszerrel védetten.
Többszintű, tűzfalas védelemmel védjük a belső hálózatunkat. Az alkalmazott nyilvános hálózatok belépési pontjain mindenhol minden esetben hardveres tűzfal (határvédelmi eszköz) helyezkedik el. Az adatokat redundánsan – azaz több helyen – tároljuk, hogy védjük azokat az informatikai eszköz meghibásodásából fakadó megsemmisüléstől, elvesztéstől, sérüléstől, a jogellenes megsemmisítéstől.
Többszintű, aktív, komplex kártékony kódok elleni védelemmel (pl. vírusvédelem) védjük a belső hálózatainkat a külső támadásoktól. Az általunk működtetett informatikai rendszerekhez, adatbázisokhoz az elengedhetetlen külső elérést titkosított adatkapcsolaton keresztül valósítjuk meg (VPN).
Mindent megteszünk azért, hogy informatikai eszközeink, szoftvereink folyamatosan megfeleljenek a piaci működésben általánosan elfogadott technológiai megoldásoknak.
A fejlesztéseink során olyan rendszereket alakítunk ki, amelyekben a naplózás révén kontrollálhatók és nyomon követhetők a végzett műveletek, észlelhetők a bekövetkezett incidensek, például a jogosulatlan hozzáférés.
Szerverünk a tárhelyszolgáltató elkülönített dedikált szerverén, védetten és zártan található.
A NAIH pártok honlapjain végzett adatkezelések adatvédelmi követelményeiről szóló ajánlás figyelembevételével a weboldalon https protokollt használunk, amely magasabb adatbiztonsági szintet jelent a http protokolhoz képest.
Weboldalunk megfelelő működése érdekében bizonyos esetekben apró adat file-okat helyezünk el a Felhasználó számítógépes eszközén, a legtöbb modern honlaphoz hasonlóan.
A süti egy olyan, kisméretű szöveges file, amit a honlap a Felhasználó számítógépes eszközére (beleértve a mobil telefonokat is) helyez el. Ennek köszönhetően a honlap „emlékezni” tud a Felhasználó beállításaira (pl.: használt nyelv, betűméret, megjelenítés, stb.), így nem kell azt minden alkalommal újra beállítani, amikor felkeresi weboldalunkat.
A Weboldalon használt sütik listája:
|
Név |
Rendeltetés |
Érvényesség |
|
Balance_X |
Terheléskiegyenlítés, a webkiszolgáló rendszer stabil üzemeltetéséhez szükséges információt tárolja, semmilyen módon nem köthető személyes adatokhoz. |
Munkamenet (böngészőablak bezárásáig) |
|
PHPSESSID |
A weboldal PHP munkamenetének kezelésére. |
Munkamenet (böngészőablak bezárásáig) |
|
tarteaucitron |
Süti tájékoztató ablak megjelenítéséhez, az elfogadott süti beállításokat tárolja. |
1 év |
|
newmenuowl |
Fejlécben megjelenő üzenetek, azt jegyzi meg, ha a látogató nem szeretné látni ezen üzeneteket. |
1 nap |
|
webshop_kedvencX |
Kedvenc ingatlanok, a felhasználó által kedvencnek megjelölt ingatlanokat tárolja. |
1 év |
|
webshop_utoljara_nezett |
Utoljára nézett ingatlanok, a felhasználó utolsó 5 megtekintett ingatlanját tárolja. |
30 nap |
Ezek a sütik letörölhetőek, vagy blokkolhatóak, de ebben az esetben a Weboldal nem biztos, hogy megfelelően fognak működni.
A sütiket nem használjuk arra, hogy a Felhasználót személy szerint beazonosítsuk. Ezek a sütik csak a fent leírt célokat szolgálják.
A süti file-ok törölhetőek (részletes információk: www.AllAboutCookies.org), vagy a legtöbb mai böngészővel elhelyezésük blokkolható is. Ebben az esetben azonban a weboldalunk használatakor bizonyos beállításokat minden alkalommal újra el kell végezni, és bizonyos szolgáltatások nem feltétlenül fognak működni.
A sütik törléséről, blokkolásáról részletes információk találhatóak a www.AllAboutCookies.org (angol) oldalon és a Felhasználó által használt böngészőre vonatkozóan az alábbi linkeken:
Ha a szolgáltatott adatokat az eredeti adatfelvétel céljától eltérő célra kívánjuk felhasználni, akkor erről a Felhasználókat tájékoztatjuk, és ehhez előzetes, kifejezett hozzájárulásukat megszerezzük, illetőleg lehetőséget biztosítunk számukra, hogy a felhasználást megtiltsák.
A felelősségünkbe tartozóan végzett adatkezelési tevékenységekről nyilvántartást vezetünk (adatkezelési tevékenység nyilvántartása) a GDPR 30. cikkének megfelelően.
Adatvédelmi incidens a biztonság olyan sérülése, amely a kezelt személyes adatok véletlen vagy jogellenes megsemmisítését, elvesztését, megváltoztatását, jogosulatlan közlését vagy az azokhoz való jogosulatlan hozzáférést eredményezi. Adatvédelmi incidens esetén a GDPR 33. és 34. cikkei szerint vagyunk köteles eljárni. Nyilvántartjuk az adatvédelmi incidenseket, feltüntetve az adatvédelmi incidenshez kapcsolódó tényeket, annak hatásait és az orvoslására tett intézkedéseket.
Bármikor jogosultak vagyunk jelen Tájékoztatót egyoldalúan módosítani. Amennyiben a Tájékoztató módosítására sor kerül, annak korábbi időállapot szerinti változatait megőrizzük, illetve – amennyiben ez lehetséges és indokolt – felhívjuk az érintettek figyelmét a módosult rendelkezésekre.
Hatályos: 2021.október 01.
|
|
Kompakt Ingatlan Kft. Adatkezelő
|
A Tájékoztató kialakítása során az Adatkezelő figyelembe vette a vonatkozó hatályos jogszabályokat, illetve a fontosabb nemzetközi ajánlásokat, különös tekintettel az alábbiakra:
-
a természetes személyeknek a személyes adatok kezelése tekintetében történő védelméről és az ilyen adatok szabad áramlásáról, valamint a 95/46/EK irányelv hatályon kívül helyezéséről szóló, 2016. április 27-i 2016/679/EU európai parlamenti és tanácsi rendelet (GDPR);
-
az információs önrendelkezési jogról és az információszabadságról szóló 2011. évi CXII. törvény 2011. évi CXII. törvény (Infotv.);
-
a Polgári Törvénykönyvről szóló 2013. évi V. törvény (Ptk.);
-
a polgári perrendtartásról szóló 2016. évi CXXX. törvény (Pp);
-
a számvitelről szóló 2000. évi C. törvény (Számv. tv.);
-
adatkezelő: az a jogi személy, amely a személyes adatok kezelésének céljait és eszközeit meghatározza;
-
adatkezelés: a személyes adatokon vagy adatállományokon automatizált vagy nem automatizált módon végzett bármely művelet vagy műveletek összessége, így a gyűjtés, rögzítés, rendszerezés, tagolás, tárolás, átalakítás vagy megváltoztatás, lekérdezés, betekintés, felhasználás, közlés, továbbítás, terjesztés vagy egyéb módon történő hozzáférhetővé tétel útján, összehangolás vagy összekapcsolás, korlátozás, törlés, illetve megsemmisítés;
-
adattovábbítás: az adat meghatározott harmadik személy számára történő hozzáférhetővé tétele;
-
adattörlés: az adatok felismerhetetlenné tétele oly módon, hogy a helyreállításuk többé nem lehetséges;
-
adatmegjelölés: az adat azonosító jelzéssel ellátása annak megkülönböztetése céljából;
-
adatkezelés korlátozása: a tárolt személyes adatok megjelölése jövőbeli kezelésük korlátozása céljából;
-
adatmegsemmisítés: az adatokat tartalmazó adathordozó teljes fizikai megsemmisítése;
-
adatfeldolgozó: az a jogi személy, amely az adatkezelő nevében személyes adatokat kezel;
-
címzett: az a természetes vagy jogi személy, közhatalmi szerv, ügynökség vagy bármely egyéb szerv, akivel vagy amellyel a személyes adatot közlik, függetlenül attól, hogy harmadik fél-e;
-
cookie: a webszerver által küldött és a felhasználó számítógépén meghatározott időre elhelyezett kis adatcsomag (szöveges fájl), amit annak jellégétől függően a szerver az újabb látogatások alkalmával ki is egészíthet, azaz, ha a böngésző visszaküld egy korábban elmentett sütit, a sütit kezelő szolgáltatónak lehetősége van összekapcsolni a felhasználó aktuális látogatását a korábbiakkal, de kizárólag a saját tartalma tekintetében;
-
érintett/felhasználó: azonosított vagy azonosítható természetes személy; azonosítható az a természetes személy, aki közvetlen vagy közvetett módon, különösen valamely azonosító, például név, szám, helymeghatározó adat, online azonosító vagy a természetes személy testi, fiziológiai, genetikai, szellemi, gazdasági, kulturális vagy szociális azonosságára vonatkozó egy vagy több tényező alapján azonosítható;
-
harmadik személy: az a természetes vagy jogi személy, közhatalmi szerv, ügynökség vagy bármely egyéb szerv, amely nem azonos az érintettel, az adatkezelővel, az adatfeldolgozóval vagy azokkal a személyekkel, akik az adatkezelő vagy adatfeldolgozó közvetlen irányítása alatt a személyes adatok kezelésére felhatalmazást kaptak;
-
az érintett hozzájárulása: az érintett akaratának önkéntes, konkrét és megfelelő tájékoztatáson alapuló és egyértelmű kinyilvánítása, amellyel az érintett nyilatkozat vagy a megerősítést félreérthetetlenül kifejező cselekedet útján jelzi, hogy beleegyezését adja az őt érintő személyes adatok kezeléséhez;
-
IP cím: valamennyi hálózatban, amelyben a kommunikáció a TCP/IP-protokoll szerint folyik, a szervergépek IP-címmel, azaz azonosítószámmal rendelkeznek, amelyek az adott gépek hálózaton keresztüli azonosítását teszik lehetővé. Tudvalévő, hogy minden hálózatra kapcsolt számítógép rendelkezik IP címmel, amelyen keresztül beazonosítható.
-
személyes adat: az érintettre vonatkozó bármely információ.;
-
tiltakozás: az érintett nyilatkozata, amellyel személyes adatainak kezelését kifogásolja, és az adatkezelés megszüntetését, illetve a kezelt adatok törlését kéri.
Hozzáférés
A Felhasználó jogosult arra, hogy – elérhetőségeink valamelyikén benyújtott – kérelmére hozzáférést kapjon az általunk által kezelt személyes adataihoz. Ennek keretében a Felhasználó az alábbiakról kap tájékoztatást:
-
személyes adatainak kezelése folyamatban van-e;
-
az adatkezelés céljai;
-
az érintett személyes adatok kategóriái;
-
azon címzettek vagy címzettek kategóriái, akikkel, illetve amelyekkel a személyes adatokat közölték vagy közölni fogják;
-
a személyes adatok tárolásának tervezett időtartama;
-
jogai;
-
jogorvoslati lehetőségei;
-
az adatforrásokra vonatkozó információ.
A Felhasználó kérheti továbbá az adatkezelés tárgyát képező személyes adatai másolatának rendelkezésére bocsátását is. Ebben az esetben a személyes adatokat tagolt, széles körben használt, számítógéppel olvasható formátumban (PDF/XML), illetve annak kinyomtatott változatában, papír alapon bocsátjuk rendelkezésre. A másolat igénylése ingyenes.
Helyesbítés
A Felhasználó – elérhetőségeinken keresztül benyújtott kérelem alapján – jogosult kérni az általunk kezelt, rá vonatkozó pontatlan személyes adatok helyesbítését és a hiányos adatok kiegészítését. Amennyiben a valóságnak nem megfelelő információk pontosításához, kiegészítéséhez szükséges információk nem állnak rendelkezésünkre, kérhetjük ezen kiegészítő adatok benyújtását, az adatok pontosságának igazolását. Ameddig az adatok pontosítása, kiegészítése – a kiegészítő információk hiányában – nem végezhető el, korlátozzuk az érintett személyes adatok kezelését, az azokon végzett műveleteket – a tárolás kivételével – ideiglenesen felfüggesztjük.
Törlés
A Felhasználó – elérhetőségeinken keresztül benyújtott kérelem alapján – jogosult kérni az általunk kezelt, rá vonatkozó személyes adatok törlését, amennyiben a következő feltételek valamelyike fennáll:
-
a továbbiakban már nincs szükségünk az adott adatokra;
-
aggodalma merül fel az adatai általunk történő adatkezelésének jogszerűsége tekintetében.
Amennyiben a Felhasználó kérelme nyomán megállapítjuk, hogy az általunk kezelt személyes adatok törlésének kötelezettsége fennáll, az adatok kezelését megszüntetjük, a korábban kezelt személyes adatokat pedig megsemmisítjük. Emellett a személyes adatok törlésének kötelezettsége a hozzájárulás visszavonása, a tiltakozási jog gyakorlása, valamint jogszabályi kötelezettségek alapján is fennállhat.
Az adatkezelés korlátozása
A Felhasználó – elérhetőségeinken keresztül benyújtott kérelem alapján – jogosult kérni az általunk kezelt, rá vonatkozó személyes adatok kezelésének korlátozását az alábbi esetekben:
-
aggodalma merül fel az általunk kezelt, rá vonatkozó személyes adatok kezelésének jogszerűsége tekintetében és az adatok törlése helyett kéri a korlátozást;
-
a továbbiakban már nincs szükségünk az adott adatokra, de a Felhasználó igényli azokat jogi igények előterjesztéséhez, érvényesítéséhez vagy védelméhez.
Automatikusan korlátozzuk a személyes adatok kezelését abban az esetben, ha a Felhasználó vitatja a személyes adatok pontosságát, illetve, ha a Felhasználó tiltakozáshoz való jogát gyakorolja. Ez esetben a korlátozás arra az időtartamra vonatkozik, amely lehetővé teszi, a személyes adatok pontosságának ellenőrzését, illetve – tiltakozás esetén – annak megállapítását, hogy fennállnak- e az adatkezelés folytatásának felételei.
A korlátozás ideje alatt a megjelölt személyes adatokon adatkezelési műveletek nem végezhetők, csak tárolni lehet az adatokat. A személyes adatokat az adatkezelés korlátozása esetén kizárólag az alábbi esetekben lehet kezelni:
-
az érintett hozzájárulása alapján;
-
jogi igények előterjesztése, érvényesítése vagy védelme;
-
más természetes vagy jogi személy jogainak védelme;
-
fontos közérdek.
A korlátozás feloldásáról előzetesen tájékoztatjuk a Felhasználókat.
Adathordozhatóság
A Felhasználó – elérhetőségeinken keresztül benyújtott kérelem alapján – jogosult kérni az általunk kezelt, rá vonatkozó személyes adatok rendelkezésre bocsátását azok további, Felhasználó által meghatározott felhasználása érdekében. Emellett a Felhasználó kérheti azt is, hogy egy általa megjelölt másik adatkezelő részére továbbítsuk a személyes adatait.
E jogosultság kizárólag a Felhasználó által rendelkezésünkre bocsátott, szerződése teljesítése érdekében kezelt személyes adatokra korlátozódik. Egyéb adatok hordozhatóságára lehetőség nincs. A személyes adatokat tagolt, széles körben használt, számítógéppel olvasható formátumban (PDF/XML), illetve annak kinyomtatott változatában, papír alapon bocsátjuk a Felhasználó rendelkezésre.
Tájékoztatjuk a Felhasználót arról, hogy e jog gyakorlása nem jár automatikusan a személyes adatok rendszereinkből való törlésével. Emellett a Felhasználó az adatok hordozását követően is jogosult a velünk történő ismételt kapcsolatfelvételre vagy kapcsolattartásra.
Tiltakozás
A Felhasználó – elérhetőségeinken keresztül benyújtott kérelem alapján – bármikor tiltakozhat a személyes adatainak a jelen Tájékoztató 3.1.; 3.2. és 3.10. pontjában meghatározott célokból történő kezelése ellen. Ebben az esetben megvizsgáljuk, hogy az adatkezelést olyan kényszerítő erejű jogos okok indokolják-e, amelyek elsőbbséget élveznek a Felhasználó érdekeivel, jogaival és szabadságaival szemben, vagy amelyek jogi igények előterjesztéséhez, érvényesítéséhez vagy védelméhez kapcsolódnak. Amennyiben azt állapítjuk meg, hogy ilyen okok fennállnak, a személyes adatok kezelését folytatjuk. Ellenkező esetben a személyes adatokat tovább nem kezeljük.